Вентиляция ресторана: виды систем, требования и нюансы

Вентиляция ресторана: виды систем, требования и нюансы

Как получить эффективную вентиляцию ресторана с учетом всех требований и сэкономить на оборудовании 1 500 000 руб. без потери качества. Вы узнаете особенности систем для разных типов заведений общепита. Я разберу свои примеры проектов и расскажу нюансы организации вентиляции для кафе в жилом дом.

С чего начать вентиляцию в ресторане?

Меня зовут Алексей Гольцов. Я проектирую вентиляцию в ресторанах более 12 лет для Novikov School, Тануки, Изи Паб. 

Если хотите получить грамотную систему и не потерять 2 млн.руб. сначала заказывайте рабочий проект. Проектировщик выполнит расчеты, подберет оборудование, согласует решения с дизайнером и строителями. Вы получите полный комплект чертежей для закупки, монтажа, наладки и обслуживания системы. Cможете сравнить реальные цены в разных компаниях.

Не заказывайте проект у монтажной компании. Они подберут заведомо более дорогие решения, а проект используют для обоснования бюджета.

Схемы вентиляции ресторанов и кафе

Схемы организации воздухообмена различаются от технологии зоны приготовления пищи. 

Кофейня и кондитерская до 20 мест без кухонных зонтов

Где применяется: небольшое кафе в жилом доме без печей и плит , кондитерская, кафе-мороженое или детского кафе. Обычно зал в таких заведениях рассчитан на 10-15 посетителей.

Вентиляция ресторана: виды систем, требования и нюансы

Как это работает: горячего цеха нет, поэтому мы проектируем совмещенную систему зала и кухни. Воздуховоды прокладываем под потолком, а канальный вытяжной вентилятор размещаем в зоне кухни или кладовой. В системе нет резких запахов от готовки пищи, поэтому отработанный воздух выбрасываем через решетку на фасад. Для притока воздуха используем настенные приточные клапаны. Работа вытяжки будет усиливать работу клапанов.

Пример проекта вентиляции кофейни 90 м2

Пример проекта вентиляции кофейни 90 м2

Потребление электроэнергии (кВт) от 0,5 до 2 кВт. 
Стоимость проекта: 40-70 тыс.руб. Стоимость монтажа: для заведения на 20 мест понадобится 4-5 приточных клапанов из расчета 1 клапан на 4 посетителей. Цена клапана 55 тыс. руб. х 5 =275 тыс. руб. Вытяжной вентилятор с комплектом автоматики обойдется в 110 тыс.руб.; монтажные работы и материалы — 110 тыс.руб. Итоговая смета такой схемы в кафе на 20 человек 565 тыс.руб.

Небольшая закусочная, пекарня, бургерная или шашлычная до 150 м²

Где применяется: закусочная или кафе неполного цикла. Например, мини-пиццерия, доставка суши с жарочной поверхностью или фритюром.

Вентиляция ресторана: виды систем, требования и нюансы

Как это работает: роль общеобменной вытяжки будет выполнять вытяжной зонт в кухне. Приток воздуха поступает в обеденный зал настенными приточными клапанами, как в первой схеме. 

Особенность: такая схема подойдет только в заведении с открытой кухней. Если помещение кухни отгорожено от основного зала, потребуется полноценная приточная установка с разводкой воздуховодов по залу. 

тестовая

тестовая

Потребление электроэнергии (кВт): 2-4 кВт — с приточными клапанами (без горячего цеха). 3-6 кВт — с приточной установкой и водяным нагревателем . 15-20 кВт с приточно-вытяжной установкой, электрическим нагревателем и рекуператором.
Стоимость проекта: 60-95 тыс.руб. Стоимость монтажа: 600-900 тыс.руб.

Пример проекта вентиляции суши-бара

Общие данные проекта вентиляции суши-бара
1/4
Общие данные проекта вентиляции суши-бара
План вентиляции
2/4
План вентиляции
Схема вентиляции
3/4
Схема вентиляции
Спецификация системы вентиляции
4/4
Спецификация системы вентиляции

Небольшой суши-бар, пиццерия или пивной ресторан до 50 мест

Где применяется: Небольшой ресторан с горячих цехом и моечной на 3-4 кухонных вытяжки. Ресторан до 500 м² с частичным или полным циклом.

Вентиляция ресторана: виды систем, требования и нюансы

Как это работает: в этой схеме нет вытяжки из зала. Приток поступает в обеденный зал от единой установки и перетекает в горячих цех через переточную решетку в стене. Таким образом, мы запираем запахи в кухне и не даем им перетекать в зал. Общеобменная вытяжная система на кухне также не требуется.

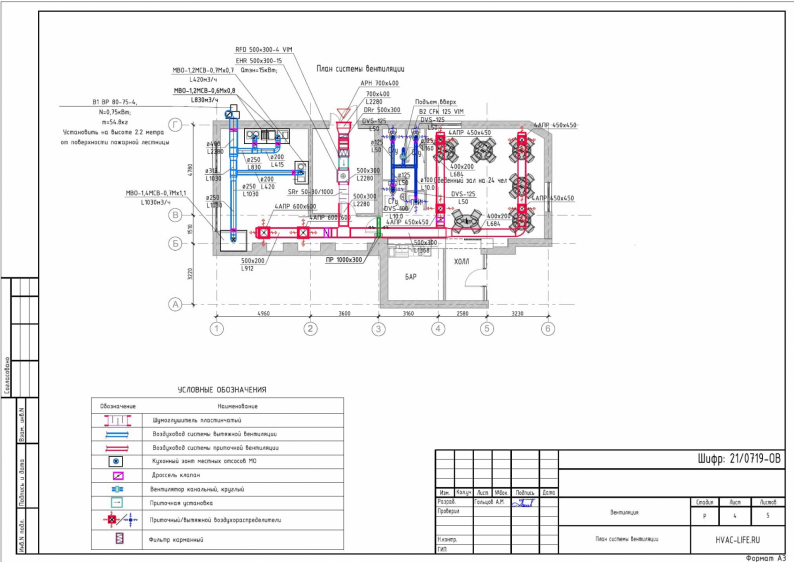
Проект вентиляции ресторана 190 м2

Проект вентиляции ресторана 190 м2

Потребление электроэнергии (кВт) от 8 до 14 кВт — приточная установка с водяным нагревателем воздуха. От 23 до 35 кВт — приточно-вытяжная установка с электрическим нагревателем воздуха и рекуператором.
Стоимость проекта: 70-120 тыс. руб. Стоимость монтажа: от 1 млн. 410 тыс. руб.

Ресторан, бар, стейк-хаус или столовая

Где применяется: рестораны полного цикла площадью 500 м2 и более с несколькими обеденными залами на 100 человек и горячим цехом на 4-5 кухонных зонтов; предприятия общественного питания. 

Вентиляция ресторана: виды систем, требования и нюансы

Как это работает: для обеденного зала и кухни проектируем раздельные приточно-вытяжные системы. В таком случае мы сможем регулировать производительность от количества посетителей и сэкономить деньги на нагреве, используя секцию рекуперации тепла.

Особенность: две независимые системы вентиляции. Одна — на зал, другая — на кухню и административные помещения. 

Где расположить оборудование: приточные установки до 5000 м 3 /ч разместим в подвесном потолке подсобных помещений; если установки более 5000 м3 /ч — на техническом фасаде здания, кровле или в помещении венткамеры. 

Потребление электроэнергии (кВт) от 10 до 15 кВт — приточные установки с водяным нагревателем воздуха. От 55 до 80 кВт — приточно-вытяжная установка с электрическим нагревателем воздуха и рекуператором. 

Стоимость проекта: у меня от 90 до 150 тыс. руб.; в компании —  250-300 тыс. руб.
Стоимость монтажа: от 2 млн. 100 тыс.руб. для ресторана 400 м². 

Расчет вентиляции ресторана

Общая площадь ресторана

Количество мест в зале

Без посадочных мест (доставка)

Концепция кухни

Площадь горячего цеха

Открытая кухня

Дополнительные системы

Открытый огонь
Барбекю-зона с мангалом или Josper

Кондитерский цех
Вытяжная система для мукопроисеивателей

Очистка выбросов кухни
Если нет возможности проложить
вытяжку на кровлю

Кальянная зона
Укажите количество посадочных мест

Рассчитать
Сбросить
Стоимость вентиляции “Под ключ”
Актуальная стоимость на 12/03/2026

Базовая стоимостьтыс.руб.

min

opt

max

с учетом доп. системтыс.руб.

Характеристики и требования

Расчетный воздухообмен

м3/ч

Потребление электроэнергии

кВт

Размер вытяжки (свечки) до кровли

мм

Мощность нагревателя воздуха

Электрический или водяной
нагрев от котла

максимальный (-25 °C)

кВт

средний (-14 °C)

кВт

минимальный (-10 °C)

кВт

Автор статьи Алексей Гольцов

Примеры проектов вентиляции ресторана

Проект вентиляции бургерной
Скачать
Проект вентиляции ресторана 490 м2
Скачать
Проект вентиляции пиццерии
Скачать

Правила и требования к вентиляции ресторана

1. Установите кухонные вытяжки только над тепловым оборудованием, чтобы уменьшить количество вовлекаемого в конвективный поток чистого воздуха из кухни. Каждые 30 см запаса добавляют лишний расход воздуха – минус 140 000 рублей.

Неверная расстановка оборудования и зонтов

Неверная расстановка оборудования и зонтов

2. Канальные вентиляторы на вытяжках запрещены. Крыльчатка забьется жиром и случится пожар.

Канальный вентилятор на вытяжке

Канальный вентилятор на вытяжке

3.Во всех помещениях заведений общественного питания должна оборудоваться приточно-вытяжная вентиляций с механическим побуждением. Это правило касается производственных, санитарно-бытовых и вспомогательных помещений. СанПиН 2.3.6.1079-01, п. 4.4

4. Мой совет: не используйте встроенный охладитель с ККБ. Он обойдется в 800 000 рублей и не заменит систему кондиционирования.

ККБ встроенный в приточку вентиляции ресторана

ККБ встроенный в приточку вентиляции ресторана

5. Моечные ванных для посуды, выделяющие влагу, тепло и газы, должны оснащаться локальной вытяжкой СанПиН 2.3.6.1079-01, п. 4.5.

Локальные местные отсосы в моечной

Локальные местные отсосы в моечной

6. Автономные вытяжные системы должны быть предусмотрены в санузлах сотрудников и гостей заведения. Естественная вентиляция для ресторанов не подойдет.

7. Выброс запахов местных вытяжных систем не должен ухудшать условия проживания жильцов и должен выполняться на кровлю здания или с использованием очистки воздуха от запахов СанПиН 2.3.6.1079-01, п. 4.6

8. В помещениях ресторана должен соблюдаться баланс воздухообмена между объёмом приточного и вытяжного воздуха. Разряжение воздуха недопустимо. (СП 60.13330.2020, п. 7.3.1)

Правильная схема компенсации запахов

Правильная схема компенсации запахов

9. Мой совет: расположите кухонное оборудования вдоль стены, чтобы локализовать запахи и сократить объемы. Откажитесь от кухонного острова, он открыт со всех 4 сторон и на 40% больше забирает воздуха - увеличивает стоимость вентиляции на 300 000 рублей. 

Кухонный остров увеличит цену вентиляции на 300 тыс.руб.

Кухонный остров увеличит цену вентиляции на 300 тыс.руб.

10. Зоны просеивание муки необходимо оборудовать местной вытяжной вентиляцией с системой фильтрации бактерицидным фильтром. СанПиН 2.3.6.1079-01, п. 4.10 

11. Минимальная кратность воздухообмена в барах и банкетных залах допустимо принимать не менее 3 крат. (МГСН 4.14-98, п. 4.22)

12. Отдельные вентиляционные системы должны быть предусмотрены в зале для посетителей, горячем цехе, санузлах, складских помещения для хранения продуктов и в камере отходов (МГСН 4.14-98, п. 3.45)

Сколько нужно воздуха для вентиляции ресторана?

Расчет воздухообмена начинается с кухонных вытяжек. Чтобы точно определить, сколько воздуха требуется для системы вентиляции ресторана, мы используем методику АВОК 7.9-2019 и расчет улавливания конвективных потоков от оборудования. 

В ней учтены десятки переменных для определения баланса воздухообмена из концентрации вредных веществ: площадь горячего цеха, высота размещения зонтов, установочная мощность оборудования, поправочные коэффициенты способы распределения воздушных потоков.

План разводки вентиляции в заведении

План разводки вентиляции в заведении

Чтобы предварительно посчитать, сколько воздуха нужно для ресторана, воспользуйтесь простой формулой для кафе с закрытой кухней: L= 500 + 1008×S + A×24, 

где L – оптимальный объем воздуха необходимый для ресторана;
S — суммарная площадь живого сечения вытяжных зонтов (в м²);
A — количество посетителей в обеденном зале (чел.)

Для заведения с открытой кухней, формула: 300 + 1008×S + A×18. Формулы моего авторства, точность +/- 15%. 

Пример расчета воздухообмена ресторана: у вас в кухне два зонта 1000×800 мм (1,6 м²) и один 1200×800 мм (0,96 м²) = 2,56 м². Для 40 посадочных мест в зале формула: 500 + 1008×2,56 + 40×24 = 500 + 3860 + 960 = 5320 м³/ч.

В итоге получите расчетный расход для определения размера и характеристик вентиляционной установки (производительность, давление и скорость) и дальше сможете определить параметры вентиляционной сети (максимальное сечение воздуховодов). 

Проверка вашего проекта
Оптимизация решений
(до 300 м2)

Бесплатно
Отправить

Какая мощность нужна для вентиляции ресторана?

Вентиляция общепита потребляет всего 3.5-4 кВт, но дополнительную нагрузку составляет нагрев свежего воздуха в зимний период года. Нагревать воздух можно в водяном калорифере от тепловой сети, в зависимости от графика теплоснабжения или электричеством (блок ТЭН). От способа нагрева потребляемая мощность кВт не изменится. Формула для расчета от –16 °C до +20 °C такая: Lx0,0123

Например, если у вас воздухообмен заведения 3000 м³/ч, для нагрева воздуха зимой с -16 до 20оС потребуется 0,0123 х 3000= 36,9 кВт. Водой или электричеством, но можно комбинированно.

Какая кратность воздухообмена в кафе?

Кратность — это ориентировочный параметр для типовых помещений, но в ресторанах объём запахов и теплоизбытков всегда рассчитывается индивидуально, поэтому кратность воздухообмена в ресторане всегда разная. Посчитайте примерный объем воздуха здесь. 

Для типовых помещений значения приведены в таблице: 

Помещение - Кратность воздухообмена (приток/вытяжка)
Моечная кухонной посуды - 3 / 4
Кладовая овощей и фруктов - 0 / 2
Рыбный или мясной цех - 3 / 4
Холодный цех - 3 / 4
Кондитерский цех - 2 / 3
Административные помещения -1 / 1
Санузлы -  50 м3/ч на 1 унитаз, 25 м3/ч на умывальник
Раздевалка персонала - 0/1
Комната отдыха про количеству персонала - 40 м3/ч на чел. 

Горячий цех

Правильная вентиляции горячего цеха в ресторане решает 50% задачи: обеспечивает эффективный воздухообмен путем локализации запахов и поддерживает отрицательный дисбаланс.

Для этого мы создаём разряжение воздуха в кухне относительно обеденного зала: 60% приток воздуха направляем в зал, а 40% — в кухонную зону, чтобы не допустить обратной тяги и обеспечить запирание запахов.

Установка вентиляции в горячем цехе

Установка вентиляции в горячем цехе

Переток из зала в кухню происходит через специальные переточные решетки во внутренней стене, чтобы не создавать избыточного давления в помещениях.

Приток в кухню поступает через решетки более чистых зон: из холодного и заготовочного цеха -30%, перетоком из зала (еще 40%), и остальные 30% подаются непосредственно в зону кухонного оборудования. Таким образом, мы локализуем загрязнения в пределах габаритов зоны готовки с помощью направленного приточного воздушного потока. 

При мощности жарочных шкафов более 10 кВт мы применяем воздушное душирование — локальную подачу свежего воздуха в зону работы персонала. Скорость воздуха в рабочей зоне не должна превышать 0,35 м/с. Допустимая температура в помещениях кухни — от 16°С до 27°С.

Вытяжка из кухни происходит через местные зонты над плитами, грилем, фритюром и другим оборудованием с интенсивным тепловыделением. Такая принудительная вытяжная система удаляет жир, влагу, тепло и запахи – является ключевой для всего заведения. 

Кратность воздухообмена в кухнях ресторанах достигает 28–35 крат, благодаря чему дополнительная система удаления углекислого газа не требуется. Чтобы исключить рециркуляцию и выбивание запахов кухни, расстояние между приточными решетками и кромкой вытяжных зонтов должно быть не менее 3.5 м

Какой тип вентиляции горячего цеха мы используем?

В проектах мы используем классический перемешивающий тип вентиляции, как самый экономичный по стоимости и удобству эксплуатации. Вытесняющий тип вентиляции горячего цеха занимает много места и сочетается только с вентилируемые потолками, которые дорогие и сложные в обслуживании. 

Мой совет: для конвекционных печей и расстоечных шкафов гораздо эффективнее использовать бортовые отсосы или угольные вытяжные зонты без подключения к вентиляции. Они создают разряжение только локально в зоне открывания дверцы, чем уменьшаю нагрузку на систему вентиляции.

В ресторанах более 500 м² – мы часто используем островные приточно-вытяжные зонты, в верхней кромке которого поступает приточная струя, которая создает воздушную завесу отсекающую зону локализации конвективных потоков оборудования. В ресторанах с открытой кухней вопрос воздухообмена горячего цеха решается совместно с вентиляцией зала.  

Вентиляция обеденного зала

Допускается общая приточная система для обеденной зоны и кухни для заведений не более 50 мест, что актуально для маленькой кофейни или закусочной.

В обычных заведениях минимальное количество наружного воздуха на одного посетителя принимается 40 м³/ч, но мы с своих расчетах берем коэффициент на заполнение зала. При количестве посадочных мест более 100 человек - 0,75. Таким образом, незначительно снижаем объем притока при полной загрузке обеденного зала без ухудшений качества вентиляции.

Нехватки свежего воздуха гости заведения не почувствуют, т.к. мы обеспечиваем дополнительную подачу воздуха в зал для запирания запахов кухни, учитываем равномерность распределение воздушных потоков без ущерба дизайну интерьера и конструктивным элементам.

Приток в зал мы предусматриваем через настенные, щелевые или потолочные решетки, анемостаты и диффузоры. До 2023 года мы принимали дополнительно 100 м3/ч на 1 курящего гостя, но с выходом Федерального закона от 23.02.2013 № 15-ФЗ курение табака запрещено в предприятиях общественного питания. 

Вентиляция кафе в жилом доме

Вентиляция кафе на первом этаже в жилом доме связана с одной проблемой. Выброс от местных систем горячего цеха мы обязаны проводить вертикальным каналом (свечкой) до крыши здания не ниже 1.5 м. от покрытия кровли, согласно СП 2.3.6, пункт 46. 

Для прокладки «свечки» вытяжки кафе в жилом доме необходимо провести собрание жильцов и получить их согласие по Жилищному кодексу РФ (статья 36, часть 4)

Свечка вытяжки кафе на фасаде

Свечка вытяжки кафе на фасаде

Законная альтернатива вытяжке на кровлю - система очистки воздуха в газоконверторе, но её стоимость от 600 до 900 тыс. рублей. Такие установки создают значительное аэродинамическое сопротивление, в результате чего напор вентилятора увеличивается с 300 до 900 Па, что увеличивает габариты и стоимость вытяжного вентилятора. 

Без очистки или свечки Роспотребнадзор (СЭС) может закрыть кафе на 90 суток по статье 6.4 КоАП РФ.

Вытяжки во дворе от кафе г. Москва, р-н Остоженка

Вытяжки во дворе от кафе г. Москва, р-н Остоженка

Если кафе пристроено к жилому дому или находится в отдельностоящем здании, нужно проверить расстояние. Если до окон жилого дома более чем на 10 м, достаточно поднять канал на кровлю самой пристройки. Это подтверждается пунктом 10.5 СП 60.

Мой совет: для оптимизации расходов на установку очистки уменьшите размер вытяжных зонтов кухни. Это позволяет сократить расчетный объём воздуха, проходящего через фильтрационную систему, тем самым уменьшив её стоимость без ущерба для санитарных требований.

Как устроена вентиляция в ресторане?

Вентиляционная система ресторана - многоуровневая климатическая система для поддержания стабильного микроклимата. Типовых решений по вентиляции ресторана не существует, т.к. проект учитывает габариты кухни и обеденной зоны, высоту потолков, уровень шума в зонах размещения оборудования, архитектурно-конструктивные ограничения вашего объекта. Отличаются даже требования к параметрам микроклимата в разных видах заведений и регионах строительства.

Приточная вентиляция в ресторане

Приточная вентиляция в ресторане отвечает за контроль параметров микроклимата в обеденном зале и производственных помещениях горячего цеха. Установки оснащаются автоматическим контролем температуры и расхода подаваемого воздуха, датчиками давления.

Для кофеен и кафе до 100 м² используем компактные приточные установки малой производительности, размещаемые за подвесным потолком в технических или складских зонах. Применяется экономичное оборудование брендов ZILON, NED, KORF. По сути, мы проектируем минимальную общеобменную вентиляцию для кафе.

Для ресторанов до 200 м² с кухней полного цикла мы применяем приточные установки средней производительности от 3 000 до 7 000 м³/ч, согласно расчету воздухообмена. В составе: фильтр G3, водяной или электрический нагреватель, вентилятор и шумоглушитель.

Приточная установка на 7000 м3/ч на стене

Приточная установка на 7000 м3/ч на стене

Базовое энергопотребление — 1–2 кВт, но в зимний период нагрузка на нагреватель возрастает до 15–30 кВт. Автоматика настраивается так, чтобы при понижении наружной температуры ниже –10 °C система снижала обороты, сохраняя баланс воздухообмена.

Для ресторанов до 200 м² в жилом доме при ограниченной электрической мощности используем приточно-вытяжную вентиляцию с рекуператором, дополнительной фильтрацией в сетчатые жироуловителе ФяР-Ж и карманном фильтре G2, подлежащих замене раз в 3 месяца.

Для ресторанов свыше 500 м² используем напольные каркасные моноблочные установки. Климатическое оборудование размещаем в отдельной венткамере или в пристроенном помещении. Забор воздуха осуществляется непосредственно с улицы через решётку с утеплённым клапаном.

В теплых климатических зонах мы используем дополнительные секции с встроенным фреоновым охладителем и ККБ, за счет чего снижаем нагрузку на систему кондиционирования.

Вытяжная вентиляция в ресторане

Вытяжка зала для посетителей потребуется в ресторанах с закрытой кухней площадью от 300 м² и в барах с танцевальной площадкой. В таких случаях применяются канальные вентиляторы подвесного исполнения, которые обеспечивают эффективное удаление отработанного воздуха из обеденного зала. 

В кафе до 50 посадочных мест вытяжка зала не требуется, как и заведениях с открытой кухней. Дополнительные вытяжки мы оборудуем в кабинетах зоны персонала, раздевалках сотрудников и кладовых продуктов. 

Вытяжка санузлов всегда предусматривается отдельная на базе круглого канального вентилятора в шумоизолированном корпусе, например TD SILENT и диффузоров в каждой кабинке и общей зоне с умывальниками. Вентилятор подключается к общедомовой вытяжной шахте, обеспечивая удаление воздуха с минимальным уровнем шума и предотвращая распространение запахов в смежные помещения.

Местные вытяжные системы

Для удаления неприятных запахов и теплоизбытков в горячем цехе используем локальные вытяжные системы, включающие вытяжной зонт, регулятор скорости и кухонный радиальный вытяжной вентилятор. 

Зонты подбираются по типу источника (пар, запахи) и способу монтажа: пристенные, купольные, островные. Все модели оснащаются съёмным жироуловителем и конденсатосборником. Размер зонта подбирается на 20 см больше каждой стороны оборудования и размещается на высоте не более 1.2 метра от поверхности оборудования. 

Кухонный вентилятор в шумоизолированном корпусе

Кухонный вентилятор в шумоизолированном корпусе

Отдельные местные вытяжки также устанавливаются в кондитерских цехах (просеивание муки, сахара, сахарной пудры), моечных кухонной посуды и посудомоечных машин.

Локальная вытяжная система моечных

Локальная вытяжная система моечных

В ресторанах более 500 м² с открытой кухней применяем зонты с притоком воздуха, которые уменьшают зону выбросов на 15%, повышая эффективность улавливания и снижая нагрузку на общую вентиляцию.

Воздуховоды для вентиляции ресторана

Для вентиляции предприятия общественного питания мы используем только оцинкованные вентиляционные каналы двух типов: прямоугольные и круглые из листовой оцинкованной стали толщиной не менее 0,8 мм. Для вытяжных систем моек и посудомоечной машины - заборные каналы из нержавеющей стали по ГОСТ 5582-75. Расчет и подбор воздуховодов мы выполняем по скорости и аэродинамическим характеристикам. 

Ни в коем случае не используйте пластиковые воздуховоды, т.к. их живое сечение канала недостаточно для производственной вентиляции, не соответствуют требованиям прочности и пожаробезопасности.

Для основных магистральных участков мы используем прямоугольные воздуховоды с фланцевыми соединениями — их аэродинамические характеристики выше, особенно с точки зрения пропускной способности и организации прокладки на ограниченной высоте. Скорость в воздуховодах магистральных линий – не более 5 м/с. В местах подключения решеток — не более 3 м/с. Монтируем на шпильках и траверсах. Длина каждого участка не более 1250мм.

Воздуховод с лючками для чистки - фото

Воздуховод с лючками для чистки - фото

Для ответвлений, подключения зонтов или вентиляторов мы применяем круглые воздуховоды диаметром не более 250 мм. 

Почему не более? В обеденном зале на 100 человек, понадобится воздуховод диаметром 355 мм, но такой размер создаёт большой опуск, что недопустимо в дизайн-проекте.

Для подключения приточных решеток можно использовать гибкие воздуховоды на участках длиной не более 1,5–2 м. Они нужны для выравнивания решеток относительно светильников в обеденной зоне. 

Для вытяжек кухни мы используем воздуховоды с прямыми участками более 4-6 поворотов, и прокладываем с уклоном 5 мм в сторону зонта. На боковых поверхностях канала устанавливаем съёмные люки размером 200×100 мм каждые 3 метра для периодической проверки и очистки.

Воздуховоды вентиляции горячих цехов нельзя оборудовать противопожарными клапанами, но они обязательны согласно СП60.13330.2020, поэтому мы применяем огнезащитное покрытие МБОР-Ф c пределом огнестойкости 60 (EI 60) или 90 минут (EI 90). Материал крепится к воздуховоду специальным клеем. Толщина клея зависит от марки и толщины огнезащитного покрытия.

Очистка вентиляции в ресторане от запахов

Установки по очистке воздуха от запахов в ресторане имеют одно главное преимущество - в кафе, расположенном в жилом доме, не надо прокладывать воздуховод (свечку) на кровлю жилого дома вертикально по фасаду. А значит, не надо согласовывать вентиляцию с жильцами. Главный недостаток системы очистки воздуха – это их стоимость от 800 тысяч рублей и выше.

Очистка воздуха для ресторана

Очистка воздуха для ресторана

От дыма используются электростатические дымофильтры, в которых частицы дыма под действием электрического поля притягиваются к пластинам фильтра. Для очистки такого фильтра будет достаточно промыть его проточной водой.

От запаха в ресторане используются плазменные газоконверторы, в которых грязный воздух от мангалов, печей и тандыров ионизируется, и образуется озон — мощный окислитель, который просто расщепляет грязные молекулы. Чтобы избавиться от запаха озона в ресторане устанавливают дополнительную секцию каталитической очистки.

От жира, сажи и золы используются гидрофильтры – искрогасители в комплекте с сетчатым фильтром механической очистки.

Фильтры очистки от запаха и дыма всегда используют с дополнительной секцией сорбентов — это специальные кассеты, заполненные каменноугольным сорбентом или гранулами активного угля. Такие кассетные фильтры меняют один раз в 5-10 месяцев — дополнительные затраты. 

Фильтры для очистки воздуха выпускают компании: Ятаган,Тион, Аэролайф и Strada. Чем компания менее известна – тем стоимость оборудования ниже. Тион и Аэролайф – прямые конкуренты с одинаковым по стоимости оборудованием. 

У всех производителей есть зонты рециркуляции с очисткой без выброса вытяжки на улицу, но такой зонт плохо очищает запахи и создает выбросы озона, которые тоже нужно удалять из помещения. 

По статистике МЧС 38% пожаров в ресторанах начинается в воздуховодах. Малейший проскок пламени или горящих паров приводит к воспламенению жировой пленки на стенках воздуховода. Требуется обязательная очистка вентиляции ресторана от жира не менее 1 раз а в год. Норма очистки: Постановления Правительства РФ от 11.07.2020 N 1034; СанПиН 3.3686-21.

Контроль: обязателен акт выполненных работ, проверяющие СЭС могут запросить журнал очистки.
Что очищается: крыльчатка вентилятора, внутренние стенки воздуховодов, крепления и стыки , вытяжные зонты и решётки, замена жироулавливающих фильтров.
Чем очищается: ВЕНТ365, SYNTILOR Sgrassa. Активные компоненты: едкий натрий, алкилполиглюкозид, средства с образованием активной щелочной пены. 

Нормы воздухообмена в ресторане

Вентиляция ресторана должна соответствовать строительным нормам и стандартам и требованиям СЭС: 

Подробный технический регламент – МГСН 4.14-98 / ТСН 31-320-2000 содержит требования к помещениям организации общественного питания в г. Москва и устанавливает технологические правила к организации вентиляции в горячих, холодных, доготовочных и моечных цехах – в пунктах 5.56-5.60. 

Гигиенические требования к микроклимату ресторана и кафе мы принимаем по санитарным нормам - СанПиН 2.3/2.4.3590-20

Методика расчета и рекомендации по проектированию - АВОК 7.9–2019

Климатические параметры наружного воздуха устанавливает СП 131.13330.2020 (Строительная климатология). Для теплого и холодного периода года мы принимаем данные по параметру Б. 

Требования к температурам внутреннего воздуха установлены СанПиН 2.2.4.1294-03 для кухни и помещений готовки пищи и для обеденных залов посадки гостей. 

Кондиционирование воздуха в ресторане

Мы выполняем подбор кондиционеров в ресторане по расчету теплопритоков: от окон, посетителей, горячей пищи, а также приточного воздуха поступающего с улицы системой вентиляции. 

В результате правильного расчета нагрузка на кондиционеры может быть до 70% выше, чем при подборе по площади, как указано на сайтах производителей для квартир. 

Поэтому подбор "на глаз" часто приводит к недостатку холодильной мощности, который выясняется, когда монтаж уже закончен. Кондиционирование воздуха может быть осуществлено с помощью центральных или местных кондиционеров или водяной системы охлаждения.

В ресторанах чаще всего применяют фреоновые системы:
– сплит-системы (один внешний блок – один внутренний),
– мультисплит-системы (до 5 внутренних блоков на один наружный, до 16 кВт холодопроизводительности),
– VRF-системы – используются при ограничениях на количество наружных блоков, например, на фасадах жилых домов.

В обеденных залах мы устанавливаем внутренние кассетные блоки, а при подшивном потолке – канальные кондиционеры с подключением щелевых решеток и равномерной подачей воздуха для комфорта посетителей. Дополнительно отдельный блок мы размещаем в кухонной зоне, в местах работы персонала.

Спасибо, что дочитали статью до конца. Теперь Вы знаете о многих нюансах вентиляции в кафе и ресторане. За проектированием вентиляции и других систем обращайтесь по телефону или пишите мне на электронный адрес proekt@hvac-life.ru. 

Об авторе

Алексей Гольцов

Главный инженер проектов с 2010 года. Более 190 успешных проектов

Заказать проект

whatsap +7 (963) 729-71-20
Подпишитесь на блог,
чтобы ничего не пропустить
Подписаться

Комментарии 23

Д
В ряде случаев островное расположение кухонного оборудования даёт скорость отдачи, экономию аренды каждый месяц , экономию инвестиций в оборудование и строительство.

23 июля 2020

Алексей Гольцов Автор
Вы мне напомнили объявление: «Тщательно пережевывая пищу Вы помогает нашему государству»

08 августа 2020

В
Алексей, очень интересная и познавательная статья. Скажите, пожалуйста, какие скорости берете в сечении вытяжных зонтов, на что ссылаетесь? Судя по примеру с зонтом 1000х800 это 0.35м/с и 0.5м/с соответственно для пристенного и островного. Достаточно ли такой скорости для удаления запахов и тепла? Заказчики судят о эффективности работы зонта по скорости — тобишь если не «сдувает», значит плохо работает :{

18 октября 2020

Алексей Гольцов Автор
Владимир, добрый день.
Скорость в зонтах изначально задавалась согласно «ОТОПЛЕНИЕ И ВЕНТИЛЯЦИЯ»,часть вторая ВЕНТИЛЯЦИЯ, под редакцией В.Н. Богословского, Москва. СТРОЙИЗДАТ 1976 г., параграф 80, стр. 257
Сравнить скорости в промышленных зонтах ( не пищевого производства) можно из пособия Б.С. Молчанова «Проектирование промышленной вентиляции»,1970 по таблице 12 и рекомендаций на странице 46.Сейчас расход воздуха считаем по расчету Р НП АВОК 7.9-2019 или ранних версий.
Скорость в зонтах получается 0,25-0,35 м/с

05 ноября 2020

Ю
Добрый день. У меня возникла проблема. У нас смонтирована притяжная вентиляция на кухню (подвал) и в зал. Вентиляторы и воздуховоды закреплены на межэтажных перекрытиях (жилая квартира). Жильцы требуют убрать вентиляционное оборудование на основании того что идет вибрация в квартиру и угрожают жалобой в СЭС, ссылаясь на нормы, требующие исключить нахождение вентиляционной камеры смежно с жилой квартирой. Возможно ли сохранить действующую конструкцию, уменьшив как то вибрацию, сведя ее к допустимым значениям по СН, или в любом случае прийдется её убирать, если жильцы всё таки напишут жалобу?

12 ноября 2020

Алексей Гольцов Автор
Юлия, добрый день.
Для фактического устранения вибрации нужно проверить, что установки закреплены на вибровставках. Это такие кругленькие шайбочки в нижней части шпильки, на которой висит самая установка. Как это выглядит найдите в яндексе по запросу «виброопора на шпильке». Для исключения вибрации совсем — можно добавить промежуточные виброопоры т.е.: в потолке забит анкет- ниже маленький участок шпильки- ниже промежуточная виброопора — опять анкет — опять виброопора уже в месте крепления самого оборудования.Для юридического решения вопроса:
Если у Вас оборудование висит под потолком помещения, или коридора — это не значит, что такое помещение является «вентиляционной камерой».
Согласно СП 73.13330.2016 пункт 3.2.
Вентиляционная камера (венткамера): Специальное помещение для размещения приточных и вытяжных вентиляционных установок.
А согласно СП 60.13330.2016 7.9.3
Вы имеет право крепить к потолку коридоров и других помещений вентиляционное оборудование производительностью до 5000 м3/ч.
У Вас скорее всего меньше.

13 ноября 2020

А
Добрый день! Если это не секрет, подскажите что за приточные клапаны за 35 тыс рублей вы упоминаете в статье? В небольшом дачном доме вытяжка осуществляется вентилятором через санузел, но притока через щели и тд не хватает видимо. Хочу поставить дополнительный приток.

25 декабря 2020

Алексей Гольцов Автор
Можете использовать клапан Экосвежесть ИД-07.
Она работает периодически на приток и на вытяжку.

28 декабря 2020

Н
Добрый день! Нужен Ваш совет. Требуется в торговом зале АЗС установить хот-дог модуль(расход воздуха вытяжного — 400м3/ч, приточного 400м3/час). Здание и коммуникации существующее (заказчик не планирует их реконструкцию), система воздуховодов, вентустановка не тянут. Возможен вариант установки островного зонта с рециркуляцией (фильтрами) над грилем? Если да, то посоветуйте марку (модель).Спасибо

10 февраля 2021

Алексей Гольцов Автор
Добрый день.
Вы скорее всего нарвались на тех самых » квалифицированных технологов» о которых я пишут в статье.
Технологи не в курсе, что хот-дог модуль — оборудование с низким уровнем тепловыделений и вытяжной зонт над ним не требуется.
В нем обрабатывается сосиска на крутящемся электрическом контактном гриле. Выделения тепла минимальны.
Зонтов на 400 кубов не существует. Можете к существующей вентиляции подключить вытяжной воздуховод ф125 диаметра и поставить над грилем диффузор ДПУ 125 или аналог.

11 февраля 2021

Р
Здравствуйте! подскажите подалуйста, обязательно ли выводить вентиляцию горячего цеха( индукционная плита, фритюр, прижимной гриль, площадь около 25 кв.м ) выше уровня крыши здания, есди здание не жилое? 3 этаж пятиэтажного здания

31 мая 2021

Алексей Гольцов Автор
Роман, добрый день!
В статье есть ответ на этот вопрос. Если кратко — ДА обязательно.
Выбросы от производственной вентиляции нужно выводить выше поверхности кровли согласно СП 60.13330.2016 пункт 10.5
Универсальное правило для всех типов зданий.

05 июня 2021

Ю
Алексей, добрый день!
Подскажите, имеет ли смысл заказывать щит автоматики для приточно вытяжной установки ресторана на 100 мест с регулировкой по СО2.

26 декабря 2021

Алексей Гольцов Автор
Добрый день, Юрий.
Нет. При расчете воздухообмена, система вентиляции ресторана должна препятствовать распространению нежелательных запахов, связанных с разделкой и приготовлением пищи, за пределы горячего цеха.
Например Р НП «АВОК» 7.9-2019 пункт 5.1.5 об этом прямо говорит.
Работа по датчику СО, влажности, датчикам присутствия никак не относится к целям вентиляции ресторана.

10 января 2022

В
Здравствуйте, Алексей! Подскажите, пожалуйста, как рассчитываете объем воздуха для мангалов, хосперов, пицца-печей? Какую скорость/расход берёте или может существует какой-то расчёт/норматив?

10 марта 2022

Алексей Гольцов Автор
Скорость берут для мангалом от 0,45 до 0,55 м/с в живом сечении зонта.
Для хосперов проще. У хоспера выброс через колпак локализован, поэтому нет надобности в таком объеме.
От хоспера скорее отвод тепла от корпуса и сбор дыма при открывании. поэтому 800 кубов будет достаточно.

22 апреля 2022

Д
Алексей, здравствуйте!
Хотелось бы сначала поблагодарить за очень информативную статью, достаточно подробно раскрыта тема. Спасибо за проделанную работу!
В комментариях несколько раз ссылались на Р НП «АВОК» 7.9-2019. Скажите большое ли упущение в проектировании основываться только на общедоступные источники по типу ТСН 31-320-2000, Р НП АВОК 7.3.-2007, пособие к СНиП 2.08.02-89, общие СП60, СП7 и т.д.?
АВОК безусловно молодцы, поднимают компетенции профильных специалистов, но увы на возмездной основе.
Или может вы могли бы поделиться электронной версией вашего экземпляра?

23 июня 2023

Алексей Гольцов Автор
Денис, спасибо. Честно говоря АВОК 7.9- 2007 года намного информативнее чем 2019.
Поэтому Вам проще пользоваться электронной версией 2007 года. Она есть в открытом доступе.

19 июля 2023

Н
Добрый день, подскажите, пожалуйста, а канальные шумоглушители на вытяжки на местные отсосы ставите обычные? они жиром не засоряются?

30 апреля 2025

Алексей Гольцов Автор
Добрый день, Николай. Канальные шумоглушители конечно забиваются жиром, можно купить специализированные шумоглушители (научная разработка АВОК) но они дорогие и только круглые. Проще менять шумоглушитель раз в год.

22 октября 2025

Оставить комментарий

Ваш адрес email не будет опубликован. Обязательные поля помечены *

Отправить
Заказать проект
Разделы проектирования

Отопление

Принудительная вентиляция

Кондиционирование

Водоснабжение и канализация

Электроснабжение и освещение

Слаботочные сети

Предварительная стоимость проекта
Дополнительная информация
Прикрепите планировки здания

Перетащите файлы в эту область или выберите на компьютере.
Не более 5 файлов, не более 8 Мб.

Отправить
Заказать проект
Отправить