Аудит проекта системы вентиляции гриль-бара

Аудит проекта системы вентиляции гриль-бара

Как сжечь новый ресторан? Очень просто. Поставить хорошую печь на дровах и найти дешевого инженера-проектировщика.  Ко мне обратился Константин. Он строит здание ресторана русской кухни с печью на дровах.

Ко мне обратился Константин. Он строит здание ресторана русской кухни с печью на дровах. У него не было сомнений в проекте вентиляции. Проект и правда сделан красочно. Он обратился ко мне за проектом отопления. Между делом я проверил вентиляцию и выпал в осадок.

Аудит проекта системы вентиляции гриль-бара

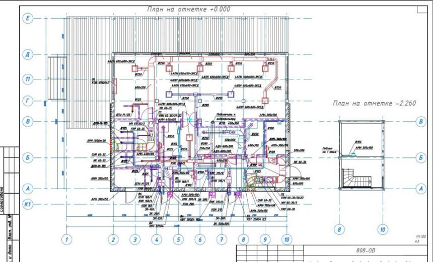
1. Ошибка в расчете вытяжных зонтов. Дым от печи пойдет в обеденный зал

В обеденном зале планируется открытая кухня. Главным элементом такой кухни будет дровяная печь «Жарушка i-60». Проектировщик рассчитал вытяжку над этой печью в 3 раза слабее, чем она требуется на самом деле. Вытяжной зонт должен удалять не менее 3000 м3/ч воздуха, а по проекту всего 1000 м3/ч.

Соответственно неверно был выбран диаметр трубы (всего 280мм вместо 400х300) и размер вентилятора. Дым от печи пойдет в обеденный зал.

Аудит проекта системы вентиляции гриль-бара

2. Неверный подбор вентилятора

Для кухонных зонтов выбрали слабый вентилятор. Специалист забыл учесть, что в сети будет установлен гидрофильтр — оборудование для очистки воздуха от дровяной печи. Это оборудование создает дополнительное сопротивление 350 Па, которое не сможет преодолеть выбранный вентилятор. В итоге зонт просто не будет работать.

3. Воздуховоды без огнезащиты

На стенках воздуховодов кухонных вытяжек откладывается жир. Во время готовки возможен проскок искр в воздуховод, что приведет к пожару. Поэтому воздуховоды, тем более от дровяных печей нужно прокладывать в огнезащитном покрытии. 

4. Лишняя вытяжная система в зале

В зале с открытой кухней не нужна отдельная вытяжная система. В качестве вытяжки будут работать вытяжные зонты на открытой кухне и вытяжка над дровяной печью.

Если установить дополнительную вытяжку в зале, такая система будет перетягивать на себя запахи из кухни. Стоимость такой вытяжки ~160 000 руб.

Аудит проекта системы вентиляции гриль-бара

5. Неверный расчет приточной системы

Из двух приточных систем в текущем проекте только одна подобрана верно. Приточная система для кухни подобрана в 2 раза меньше, чем требуется (на 2300 м3/ч при необходимых 4800 м3/ч).

Приточного воздуха в кухне будет недостаточно, поэтому запахи будут выбиваться из зонтов и распространяться по помещениям. Приточную систему П2 нужно менять на более мощную или сократить количество оборудования.

Аудит проекта системы вентиляции гриль-бара

6. Выбраны дорогие вентиляторы для кухни

Система вентиляции стоит дорого, поэтому от квалификации проектировщика напрямую зависит стоимость будущих систем. Можно сэкономить на проекте и потом потерять 600 000 рублей из-за выбора дорогих проектных решений. 

Вытяжки кухонных зонтов В2, В3 и В4 спроектирована на дорогом оборудовании Systemair. Общая стоимость систем 480 000 руб. Можно было применить российские вытяжные вентиляторы такого же качества и заплатить 180 000 руб.

Аудит проекта системы вентиляции гриль-бара

Понравился разбор проекта или появились вопросы? Напишите мне на эл.адрес или ватсап, указанный на сайте.

Примеры наших работ

680 м2
Ресторан "Дирхам"

г. Москва, просп. Вернадского, 105, к.1

250 м2
Коттедж г. Всеволожск

Лен.область, г. Всеволожск

262 м2
Стоматология г. Электросталь

Московская обл., г. Электросталь

350 м2
Ресторан "Абрау Дюрсо"

г. Краснодар, ул. Красная, д. 33

498 м2
Ресторан "География"

Москва, Пресненская наб., 2

Подпишитесь на блог,
чтобы ничего не пропустить
Подписаться
Заказать проект
Разделы проектирования

Отопление

Принудительная вентиляция

Кондиционирование

Водоснабжение и канализация

Электроснабжение и освещение

Слаботочные сети

Предварительная стоимость проекта
Дополнительная информация
Прикрепите планировки здания

Перетащите файлы в эту область или выберите на компьютере.
Не более 5 файлов, не более 8 Мб.

Отправить
Заказать проект
Отправить