проектировщика
Блог Алексея Гольцова
г. Москва, ул. Лихоборские бугры, д.12

Сделано:
5 рабочих дней
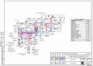
Помещение стоматологии на первом этаже жилого дома. Устройство рентген-кабинета с независимой вытяжной системой. Вентиляция с фотокалитической очисткой воздуха ФКО-600.





Перетащите файлы в эту область или выберите на компьютере.
Не более 5 файлов, не более 8 Мб.
Согласен с Политикой конфиденциальности
Отопление
Принудительная вентиляция
Кондиционирование
Водоснабжение и канализация
Электроснабжение и освещение
Слаботочные сети
Перетащите файлы в эту область или выберите на компьютере.
Не более 5 файлов, не более 8 Мб.
Согласен с Политикой конфиденциальности