проектировщика
Блог Алексея Гольцова
г. Краснодар, ул. Красная, д. 33

Сделано:
18 рабочих дней
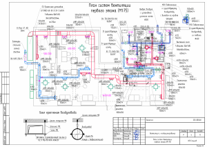
Общеобменная вентиляция зала и большой горячий цех в т.ч. в подвальных помещениях. Ресторан на 1 этаже жилого дома. Советское здание в центре города с балками и ригелями. Сложность: 5/10






Перетащите файлы в эту область или выберите на компьютере.
Не более 5 файлов, не более 8 Мб.
Согласен с Политикой конфиденциальности
Отопление
Принудительная вентиляция
Кондиционирование
Водоснабжение и канализация
Электроснабжение и освещение
Слаботочные сети
Перетащите файлы в эту область или выберите на компьютере.
Не более 5 файлов, не более 8 Мб.
Согласен с Политикой конфиденциальности