проектировщика
Блог Алексея Гольцова
Московская область, городской округ Истра, КП "Миллениум Парк"

Сделано:
32 рабочих дня
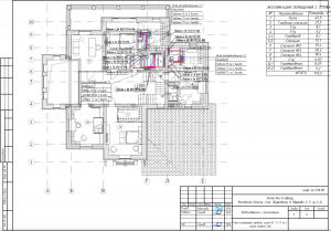
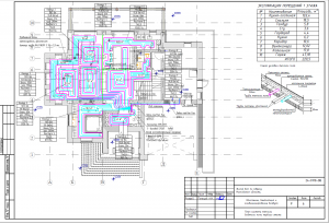
Коллекторная схема отопления со стальными секционными радиаторами Arbonia, и конвекторами Varmann.; Котельная на базе напольного атмосферного котла Buderus 73 кВт.






Перетащите файлы в эту область или выберите на компьютере.
Не более 5 файлов, не более 8 Мб.
Согласен с Политикой конфиденциальности
Отопление
Принудительная вентиляция
Кондиционирование
Водоснабжение и канализация
Электроснабжение и освещение
Слаботочные сети
Перетащите файлы в эту область или выберите на компьютере.
Не более 5 файлов, не более 8 Мб.
Согласен с Политикой конфиденциальности