проектировщика
Блог Алексея Гольцова
Московская область, пос. Краснопахорское

Сделано:
25 рабочих дней
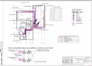
Жилой дом с бассейном 4х8м, осушение воздуха системой вентиляции, теплые водяные полы, электроснабжение с использованием резервного генератора и реле приоритетов.




Перетащите файлы в эту область или выберите на компьютере.
Не более 5 файлов, не более 8 Мб.
Согласен с Политикой конфиденциальности
Отопление
Принудительная вентиляция
Кондиционирование
Водоснабжение и канализация
Электроснабжение и освещение
Слаботочные сети
Перетащите файлы в эту область или выберите на компьютере.
Не более 5 файлов, не более 8 Мб.
Согласен с Политикой конфиденциальности