проектировщика
Блог Алексея Гольцова
Лен.обл., г. Санкт-Петеребург

Сделано:
14 рабочих дней
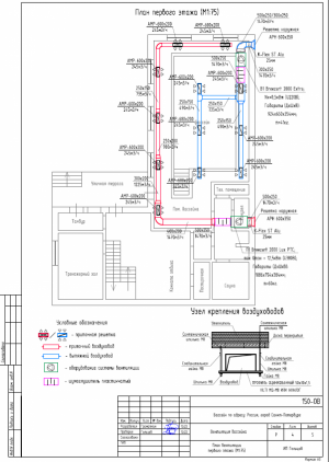
Бассейн без технической зоны. Вытяжка над зеркалом воды с двойным утеплением для защиты от конденсата.






Перетащите файлы в эту область или выберите на компьютере.
Не более 5 файлов, не более 8 Мб.
Согласен с Политикой конфиденциальности
Отопление
Принудительная вентиляция
Кондиционирование
Водоснабжение и канализация
Электроснабжение и освещение
Слаботочные сети
Перетащите файлы в эту область или выберите на компьютере.
Не более 5 файлов, не более 8 Мб.
Согласен с Политикой конфиденциальности