Аудит проекта инженерных систем магазина морепродуктов

Аудит проекта инженерных систем магазина морепродуктов

Бывают ситуации, когда заказчик не понимает, зачем ему нужен проект. Он говорит: «Мне не нужен ваш проект. Мне нужна стоимость системы «под ключ». И он прав, но с небольшой оговоркой.

Без проекта обманут.

Так и произошло с магазином морепродуктов «Лавка Раков». Строители сделали проект вентиляции бесплатно, но с максимально дорогими проектными решениями. Для магазина 125 м2 вентиляция получилась 2 млн. 400 тыс. рублей. (2022 год)

Коммерческое предложение для Лавки Раков по оборудованию и монтажу — ссылка.

Собственник магазина позвонил мне. Он пытался разобраться, в чем же дело. Откуда такая цена? Я объяснял, что нет ничего удивительного. Проект нужно заказывать у независимого проектировщика, а не в строительной компании. Именно инженер-проектировщик решает, какую систему рассчитать: дешевую или дорогую. 

Но собственника мои аргументы не убедили. Он требовал бесплатных решений, и он их получил.

1. Проект вентиляции магазина 125 м2 на 44 страницы.

Обычно такой проект занимает 8-10 страниц. Если специалист хочет обмануть, он искусственно увеличивает объем проекта. В проекте «Лавки раков» было много расчетов, таблиц и большая пояснительная записка на 24 страниц. Проектировщик старался не просто так.;)

Аудит проекта инженерных систем магазина морепродуктов

2. Каламбур с очисткой воздуха на 650 тысяч рублей.

Проектировщики устроили заказчику неприятный сюрприз.

В зоне магазина была кухня и свободная вытяжная шахта до кровли здания. В нее можно было выбросить воздух от кухонных зонтов без использования дорогих установок по очистке.

Специалисты выбрали самое дорогое проектное решение из всех возможных. Вытяжную шахту они задействовали для маленьких офисных помещений. Вытяжной воздух от зонтов решили выбрасывать на улицу, используя очистку воздуха за 650 тысяч рублей.

Аудит проекта инженерных систем магазина морепродуктов

3. Охлаждение приточного воздуха за 400 тысяч рублей.

В приточную вентиляцию можно дополнительно встроить секцию охлаждения. Охладитель не заменяет кондиционер и удаляет лишь 40% избытков тепла. Такая секция охлаждения нужна в офисных центрах и производственных зданиях.

Для всех других зданий секция охлаждения – это «развод на деньги». Именно такой развод случился с Лавкой Раков.

Аудит проекта инженерных систем магазина морепродуктов

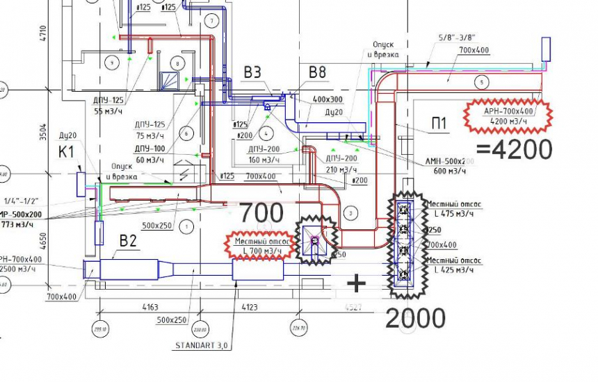
4. Оборудование в 1,5 раза мощнее и дороже, чем требуется

Инженер-проектировщик рассчитывает мощность и подбирает оборудование. Оборудование — это деньги. Для «Лавки Раков» проектировщик работал бесплатно, поэтому решил не экономить и сложил: «700 + 2000 =  4200». Специалист увеличил мощность оборудования в 1,5 раза. Заказчик переплатил за оборудование и монтаж 450 тысяч рублей.

Аудит проекта инженерных систем магазина морепродуктов

В итоге: у меня не было замечаний к проекту. С технической точки зрения проект был сделан верно! Просто проектные решения были очень дорогие. Но Заказчик сэкономил на проекте, переплатив 1,5 млн.руб.

Примеры наших работ

680 м2
Ресторан "Дирхам"

г. Москва, просп. Вернадского, 105, к.1

250 м2
Коттедж г. Всеволожск

Лен.область, г. Всеволожск

262 м2
Стоматология г. Электросталь

Московская обл., г. Электросталь

350 м2
Ресторан "Абрау Дюрсо"

г. Краснодар, ул. Красная, д. 33

498 м2
Ресторан "География"

Москва, Пресненская наб., 2

Подпишитесь на блог,
чтобы ничего не пропустить
Подписаться
Заказать проект
Разделы проектирования

Отопление

Принудительная вентиляция

Кондиционирование

Водоснабжение и канализация

Электроснабжение и освещение

Слаботочные сети

Предварительная стоимость проекта
Дополнительная информация
Прикрепите планировки здания

Перетащите файлы в эту область или выберите на компьютере.
Не более 5 файлов, не более 8 Мб.

Отправить
Заказать проект
Отправить