проектировщика
Блог Алексея Гольцова
г. Москва, Ленинградское ш., 16А, стр. 2, эт. 2

Сделано:
26 рабочих дней
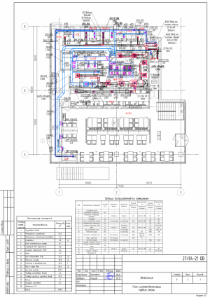
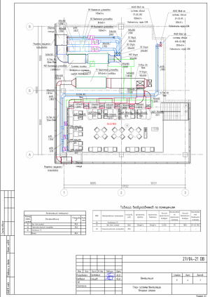
Ресторан японской кухни сети "Тануки" в торговом центре Метрополис (офисная часть ТЦ) Самая дорогая система очистки воздуха кухни "Аэролайф" на 18 000 кубов.






Перетащите файлы в эту область или выберите на компьютере.
Не более 5 файлов, не более 8 Мб.
Согласен с Политикой конфиденциальности
Отопление
Принудительная вентиляция
Кондиционирование
Водоснабжение и канализация
Электроснабжение и освещение
Слаботочные сети
Перетащите файлы в эту область или выберите на компьютере.
Не более 5 файлов, не более 8 Мб.
Согласен с Политикой конфиденциальности