проектировщика
Блог Алексея Гольцова
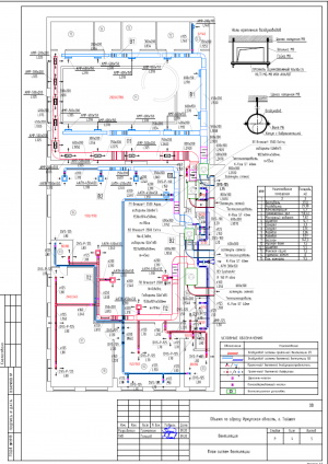
Иркутская обл. г. Тайшет

Сделано:
32 рабочих дня
Спорткомплекс в Иркутской обл. Принудительная вентиляция спортзала, душевых и бассейна. Сложный зимний режим эксплуатации оборудования. Разветвленная сеть ригелей под потолком.






Перетащите файлы в эту область или выберите на компьютере.
Не более 5 файлов, не более 8 Мб.
Согласен с Политикой конфиденциальности
Отопление
Принудительная вентиляция
Кондиционирование
Водоснабжение и канализация
Электроснабжение и освещение
Слаботочные сети
Перетащите файлы в эту область или выберите на компьютере.
Не более 5 файлов, не более 8 Мб.
Согласен с Политикой конфиденциальности