проектировщика
Блог Алексея Гольцова
Московская область, г.о. Подольск, д. Бережки

Сделано:
25 рабочих дней
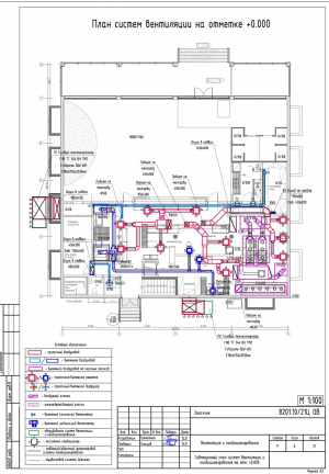
Ресторан 740 м2 с воздухообменом 35 000 кубов (как 11 обычных ресторанов) Вентиляция на базе газовых нагревателей, установленных на улице. 12 вытяжных зонтов в т.ч. кондитерский цех с пылевыми фильтрами.






Перетащите файлы в эту область или выберите на компьютере.
Не более 5 файлов, не более 8 Мб.
Согласен с Политикой конфиденциальности
Отопление
Принудительная вентиляция
Кондиционирование
Водоснабжение и канализация
Электроснабжение и освещение
Слаботочные сети
Перетащите файлы в эту область или выберите на компьютере.
Не более 5 файлов, не более 8 Мб.
Согласен с Политикой конфиденциальности