проектировщика
Блог Алексея Гольцова
г. Челябинск

Сделано:
35 рабочих дней
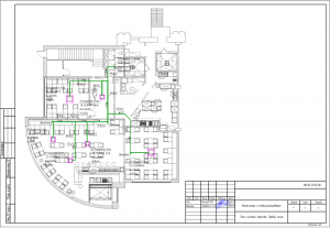
Проект реставрации объекта культурного наследия (дом мещанина Степанова) под ресторан. Вентиляция на базе оборудования КОРФ.






Перетащите файлы в эту область или выберите на компьютере.
Не более 5 файлов, не более 8 Мб.
Согласен с Политикой конфиденциальности
Отопление
Принудительная вентиляция
Кондиционирование
Водоснабжение и канализация
Электроснабжение и освещение
Слаботочные сети
Перетащите файлы в эту область или выберите на компьютере.
Не более 5 файлов, не более 8 Мб.
Согласен с Политикой конфиденциальности