проектировщика
Блог Алексея Гольцова
г. Москва, Южное Бутово

Сделано:
20 рабочих дней
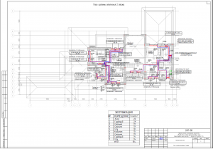
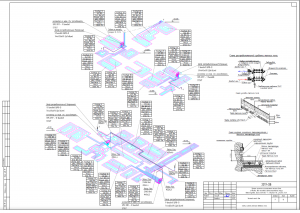
Проект отопления и теплых водяных полов здания коттеджа из кирпича porotherm 510mm. Система теплых водяных полов во всех зонах помещений, регулируемых сервоприводами WATTS и датчиками температуры пола.






Перетащите файлы в эту область или выберите на компьютере.
Не более 5 файлов, не более 8 Мб.
Согласен с Политикой конфиденциальности
Отопление
Принудительная вентиляция
Кондиционирование
Водоснабжение и канализация
Электроснабжение и освещение
Слаботочные сети
Перетащите файлы в эту область или выберите на компьютере.
Не более 5 файлов, не более 8 Мб.
Согласен с Политикой конфиденциальности