проектировщика
Блог Алексея Гольцова
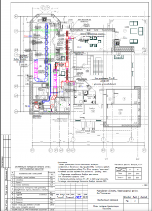
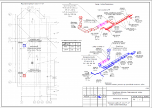
Московская обл. г.о. Красногорский, дер. Тимошкино

Сделано:
15 рабочих дней
Проект вентиляции бассейна без осушителей воздуха на базе оборудования ВЗ "Титан". Работа вентиляции в режимах " Зима/Лето" от частотного преобразователя.






Перетащите файлы в эту область или выберите на компьютере.
Не более 5 файлов, не более 8 Мб.
Согласен с Политикой конфиденциальности
Отопление
Принудительная вентиляция
Кондиционирование
Водоснабжение и канализация
Электроснабжение и освещение
Слаботочные сети
Перетащите файлы в эту область или выберите на компьютере.
Не более 5 файлов, не более 8 Мб.
Согласен с Политикой конфиденциальности