проектировщика
Блог Алексея Гольцова
Владимирская обл.

Сделано:
12 рабочих дней
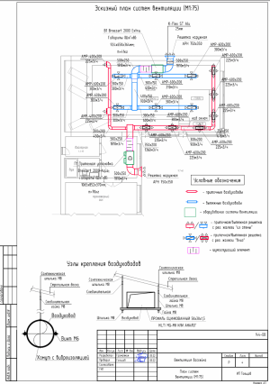
Бассейн г. Владимир зеркало воды 40 м2. Система вентиляции без рекуператора и осушителя, технической комнаты нет. Оборудование под потолком бассейна.






Перетащите файлы в эту область или выберите на компьютере.
Не более 5 файлов, не более 8 Мб.
Согласен с Политикой конфиденциальности
Отопление
Принудительная вентиляция
Кондиционирование
Водоснабжение и канализация
Электроснабжение и освещение
Слаботочные сети
Перетащите файлы в эту область или выберите на компьютере.
Не более 5 файлов, не более 8 Мб.
Согласен с Политикой конфиденциальности