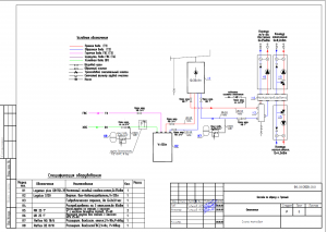
Бассейн г. Грозный

Чеченская респ., г. Грозный

110 м2
bas

Сделано:

  • Вентиляция
  • Отопление
Срок проектирования:

10 рабочих дней

Особенности проекта:

Одноэтажный бассейн в регионе с повышенной влажностью летом. Забор и выброс воздуха через кровлю здания.

Скачать проекты:
l
l2
l3
l4
l5
l6

Похожие проекты

40 м2
Бассейн Владимирская обл.

Владимирская обл.

21 м2
Бассейн Всеволожский р-н

Ленинградская область, КП

28 м2
Бассейн г. Санкт-Петеребург

Лен.обл., г. Санкт-Петеребург

65 м2
Бассейн HONKA

МО, Одинцовский р-н., д. Дунино

50 м2
Бассейн Тимошкино

Московская обл. г.о. Красногорский, дер. Тимошкино

450 м2
190 м2
Бассейн д. Федорцово

Московская область, Сергиево-Посадский г.о, дер. Федорцово,

120 м2
Акваклуб г. Пушкино

Московская обл., г. Пушкино, ул. Просвещения

Оставить заявку на проектирование

Прикрепите планировки здания

Перетащите файлы в эту область или выберите на компьютере.
Не более 5 файлов, не более 8 Мб.

Отправить
Заказать проект
Разделы проектирования

Отопление

Принудительная вентиляция

Кондиционирование

Водоснабжение и канализация

Электроснабжение и освещение

Слаботочные сети

Предварительная стоимость проекта
Дополнительная информация
Прикрепите планировки здания

Перетащите файлы в эту область или выберите на компьютере.
Не более 5 файлов, не более 8 Мб.

Отправить
Заказать проект
Отправить
Таблица стоимости проектирования
Вид работ
Цена
Вид услуги
1
Выезд инженера на объект - бесплатно (при заказе проектирования)
15 000
2
Технический аудит инженерных систем (1 система)
20 000
3
Перевод планов здания в формат DWG
5 000
4
Проверка существующих проектов (1 раздел)
7 000
5
Авторский надзор на объекте Москва и МО (при заказе проектирования)
бесплатно
6
Технический надзор на объекте Москва и МО (при заказе проектирования)
30 000
7
Подготовка Технического задания по объекту
10 000
8
Технологические решения кухни ресторана
25 000
Проектирование вентиляции и кондиционирования
1
Проект естественной вентиляции дома
25 000
2
Проект гибридной вентиляции частного дома
40 000
3
Проект приточно-вытяжной вентиляции частного дома
45 000
4
Проект механической вентиляции ресторана и местные вытяжные системы
55 000
5
Проект принудительной вентиляции офиса/магазина
60 000
6
Проект механической вентиляции стоматологии
65 000
7
Проект приточно-вытяжной вентиляции бассейна
50 000
8
Проект принудильной вентиляции и кондиционирования офиса
80 000
9
Проект принудительной вентиляции кальянной
70 000
10
Проект противодымной вентиляции здания
65 000
11
Проект противодымной вентиляции коридора
55 000
12
Проект кондиционирования помещений
30 000
13
Проект адиабатического увлажнения квартиры/частного дома
30 000
Проектирование отопления и котельной
1
Проект отопления и теплого пола частного дома до 150 кв.м
60 000
2
Проект отопления и теплого пола частного дома более 150 кв.м 
80 000
3
Визуализация котельной частного дома
35 000
4
Расчет теплопотерь загородного дома
20 000
5
Расчет теплопотерь здания
20 000
6
Проект воздушного отопления здания
55 000
7
Проект отопления коммерческого здания до 200 кв.м
60 000
8
Проект отопления производственного здания более 200 кв.м
80 000
9
Проект котельной частного дома
45 000
10
Проект индивидуального теплового пункта коттеджа
25 000
11
Проект теплового узла от существующей котельной
20 000
12
Проект наружной теплотрассы от котельной до дома
25 000
Проектирование водоснабжения и канализации
1
Проект водоснабжения и канализации частного дома до 150 кв.м 
50 000
2
Проект водоснабжения и канализации частного дома более 150 кв.м 
80 000
3
Проект наружных сетей водосбжения и водоотведения по участку
45 000
4
Проект водоснабжения и канализации коммерческого здания
75 000
5
Проект наружных сетей ливневой канализации
50 000
Проектирование электроснабжения и освещения
1
Проект электроснабжения и освещения частного дома до 150 кв.м
60 000
2
Проект электроснабжения и освещения частного дома более 150 кв.м
75 000
3
Проект электроснабжения и освещения коммерческих помещений
65 000
4
Проект электроснабжения и освещения производственного здания более 200 кв.м
80 000